Llevábamos 44 años viviendo en nuestra casa de calle Los Leones. Algo vieja y muy estrecha nos dejaba partir a un nuevo hogar. Era el año 2003, cuando un grupo de oficiales y voluntarios se puso la ya reiterativa tarea de cambiarnos de cuartel. El proyecto era casi tan viejo como el mismo cuartel, pero ahora había una diferencia: el Alcalde de la Municipalidad de Providencia Cristián Labbé había escuchado en una conversación nuestra que queríamos cambiarnos de cuartel. Entre broma y en serio nos dijo: “Juntémonos en la Municipalidad y veamos qué podemos hacer”.
No dejamos escapar esa oportunidad y prontamente estábamos en su oficina con una presentación hecha a la medida de las circunstancias.
La posición del alcalde Labbé fue clara. Vamos con el proyecto, yo me consigo con el concejo municipal la autorización para comprar el terreno.
Nuestro proyecto tomaba forma y la buena noticia nos obligaba a correr en búsqueda de una nueva ubicación, que evidentemente quedara dentro de la comuna de Providencia.
Se creó una comisión compuesta por el Director, el Capitán, oficiales y voluntarios, entre ellos algunos arquitectos y corredores de propiedades, para darle forma a este sueño posible de alcanzar.
La primera misión era determinar un lugar. Pensando en factores como cercanía al metro, a una zona comercial y que, desde el punto de vista del servicio, cubriera una zona desprotegida por material de agua y rescate de otras Compañías. Abrimos un mapa, señalamos dónde estaban los cuarteles de las Compañías de agua y rescate de la zona y nos inclinamos hacia el sector nororiente de la comuna.
El cuartel de Los Leones estaba ubicado hacia el sector sur de Providencia, rozando el límite con Ñuñoa, por lo que el norte estaba desprotegido. Por otra parte, la 15ª Compañía que tenía la especialidad de rescate, se había trasladado desde Apoquino con El Bosque hacia Los Domínicos.
El gran espacio descubierto que había quedado en el sector de Apoquindo, Tobalaba, Eliodoro Yáñez y Luis Thayer Ojeda se transforma en un cuadrante foco para la instalación de nuestro nuevo cuartel.
Nuestro corredor de propiedades comenzó la tarea de buscar sitios disponibles en ese sector, llegando solamente a dos terrenos evaluables. Uno era a la salida de la nueva estación de metro que se estaba haciendo en Tobalaba con Eliodoro Yáñez. Un espacio no muy grande pero bastante bien ubicado. El segundo era más bien una locura. Construir sobre el canal San Carlos el nuevo cuartel. Ambas ideas fueron desechadas y seguiríamos en la búsqueda de un nuevo terreno.
Después de semanas, más bien meses, la búsqueda no tuvo un resultado positivo. No había terrenos disponibles en ese sector. Entonces la atención se centró en ampliar la mirada y buscar ahora edificaciones existentes cuyos dueños estuvieran de acuerdo en vender sus propiedades.
Gran desafío. Tocar muchas puertas y ofrecer comprar para un cuartel de bomberos.
Finalmente, hacia fines de 2003, dimos con dos interesados en vender sus propiedades. Se trataba de la Juguetería Alemana y su casa lateral, un local de venta de cuadros ubicados en Av. Tobalaba entre Lota y El Bosque. El lugar era perfecto. Ahora, había que contar con la validación del Cuerpo por su ubicación y después ir donde el Alcalde a explicarle que no era una propiedad la que había que comprar, si no dos.
Con el ok del Superintendente Cristián Pérez y el Comandante Sergio Caro, fuimos donde el Alcalde Labbé quien comprometió los fondos necesario para la adquisición de ambos terrenos.
Ahora había que conseguir los recursos para la construcción. Ya habíamos dado un gran paso, pero el camino por recorrer seguiría siendo largo.
Otra buena noticia que vendría asociada a la primera era que la Municipalidad de Providencia no nos pediría el cuartel de Los Leones a cambio de la compra de los nuevos terrenos. Eso significaba que con la venta de ese cuartel, podríamos financiar la construcción del nuevo.
Luego de varios Consejos de Oficiales Generales y Directorios del Cuerpo, se aprobó el financiamiento para la construcción del nuevo cuartel de la 14. Los fondos saldrían de la venta de Los Leones en parte y por un aporte extraordinario del Cuerpo.
Nuestro sueño ya era una realidad y se tangilbiizaba el día 20 de noviembre de 2004 cuando el Cuerpo y nuestra Compañía formaban frente a ambas propiedades de Tobalaba, donde el Alcalde Cristián Labbé, vestido con cotona de trabajo y casco de la 14, maniobraba la grúa que derrumbaría el primer muro de la Juguetería Alemana.
El 3 de marzo de 2005, ya con ambas construcciones demolidas, el Príncipe Eduardo de Inglaterra, ponía la Primera Piedra del nuevo cuartel. Fue sin duda ese momento un gatillador para que el hijo de la Reina aceptará en 2008 ser miembro honorario de nuestra Compañía.
Ya con importantes avances en la construcción, el 2 de junio de 2006, el Alcalde Labbé revisaba personalmente las obras, quedando ya algunos pocos meses para la inauguración.
Llegó el 2 de diciembre de 2006. Un caluroso día del verano que estaba por comenzar, nos juntaba en el cuartel de Los Leones. Formamos frente a su fachada y junto a una banda escocesa, nos fuimos marchando hacia nuestra nueva casa. Los Leones, Pocuro, Luis Thayer Ojeda y Lota fue nuestro recorrido. Nos esperaba el Cuerpo formado frente al nuevo cuartel.
Los discursos estuvieron a cargo del Superintendente, el Director y el Alcalde. Una vez descubierto el escudo de la Compañía, dábamos paso a un nuevo hito en nuestra historia.
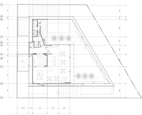
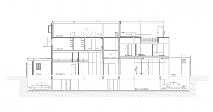
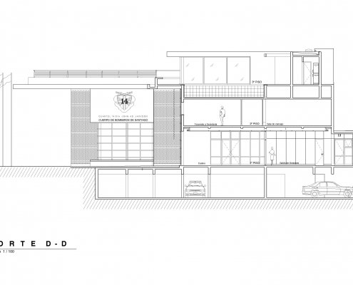
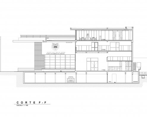
En Los Leones quedaban 47 años de historia, en Tobalaba comenzaba un nuevo recorrido.
Links de Interés
Contacto
Dirección: Av. Tobalaba 455, Providencia, Santiago, Chile.


























































































































































































































































































